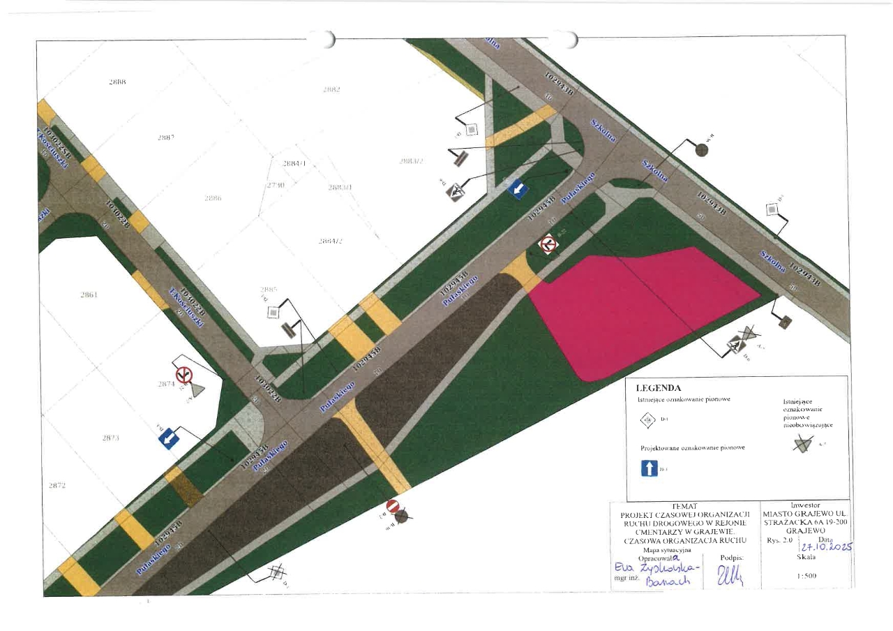
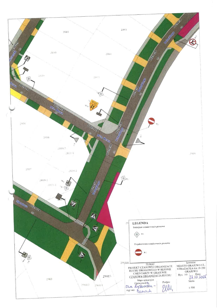
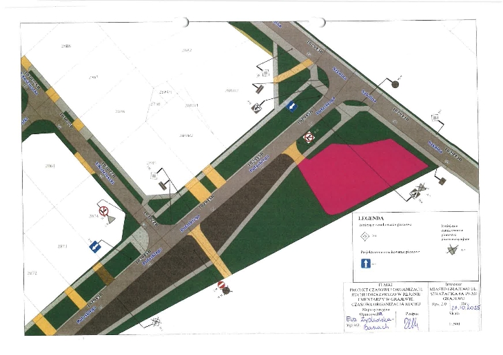
Wprowadzenie czasowej organizacji ruchu drogowego w rejonie cmentarzy w Grajewie
UM
sobota, 20 grudnia 2025
sobota, 20 grudnia 2025
I jak zwykle wyjechać normalnie spod swojego domu nie będzie można tylko jeździć w koło żeby do pracy dojechać. Cały rok mają żeby chodzić na cmentarz a wszyscy zlatują się tylko w ten jeden dzień żeby poplotkować na innych a nie powspominać zmarłych
Biuro Podróży
Restauracja
Pozycjonowanie
Dom Pogrzebowy
WeselaPrzyjęcia
CentrumMateriałów
Pensjonat & SPA Rajgród
Stomatologia MedycynaEstetyczna
Szkoła Policealna
Pracuj.pl© Copyright 2025, Wszelkie prawa zastrzezone
